The Custom Pool Build (Installation) Process
Included below are all the steps you need to consider and understand as part of your Custom Pool Build Process. The pool kit installation procedure is one of the most critical phases of the Custom Pool Build (Installation) Process. This is precisely why you or your builder/installer should understand each specific part of the Custom Pool Build Process including the installation steps of your custom swimming pool kit.
A. Find a flat area in your yard that is large enough to have a pool and its surrounding deck. Typically, the edge of your pool needs to be a minimum of 5-7 feet away from any structure such as a house, a shed or a fence. If your yard is not predominately flat then you first need to make preparations to have your yard leveled to grade before you can have a pool.
B. Take good measurements of your yard including length and width of the determined area.
C. Try and visualize how your pool area will look with your desired pool, decking, landscaping, etc.
Sketch out a drawing to depict how you want your pool area to look. Sample Hand Drawn Pool Plan

A. Custom Pools: find a model that has the approximate size you want to fit in your area. If your pool is going to be totally custom you still need to have a very good idea of the size and area that will be used.

A. Custom Pools: from the model you found that will fit in your pool area make sure it is the best option for stair location and depths. If your pool is going to be totally custom keep in mind where the stair locations will be.
A. Find an area not too far from your pool.
B. You will need a pool pump and filter but you may want to add some additional equipment such as a heater, a salt chlorination generator, an auto-vac pool sweeper or even safety pool cover.
C. Update your hand drawn pool plan by marking the location of your pool equipment.

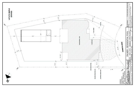
A. You will need to give your pool designer an accurate set of plans to work from to design your pool and placement thereof.
B. The plans will need to have measurements of property lines, structures, obstructions and certain obstacles. Also needed are measurements that display dimensions between property lines/fence lines and structures/house.
C. Most important, make sure that good accurate measurements are taken and displayed on your proposed pool area plan. There is no such thing as too many measurements.
D. Take pictures of your pool area for reference.
E. A hand drawn proposed pool plan works fine as long as it is legible.
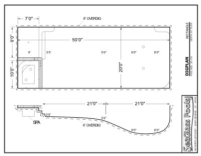
Custom Pool Plans

A. First decide if all you want is the bare essentials or if you would like to have more done, such as: engineering, renderings, details, etc.
B. Remember that plan design is a necessary step and should not be skipped. You will need them for proper construction and permitting.
C. The bare essential plans (required) you will need are 1) pool layout plan, 2) dig plan and 3) pool placement plan. In many places you will also be required to have engineering plans.
D. With the these pool plans you will be able to get a pool construction permit and start your pool. After you have already gotten your permit and find that you need to make a change, no worries, you need only submit the changes to the building department. Keep in mind, your building department has certain guidelines that will be issued to you and as long as you stay within those guidelines you should have nothing to worry about.
Custom Pool Plans

STEP 7) Set A Date
Get Scheduled, Get Permit (if required)
STEP 8) Excavation
A. Layout and mark the exact and final resting location for your pool.
B. Pool site is cleared and pool hole is dug.
C. Trenches are dug for plumbing lines, for electrical lines and for other items that will be submerged underground.
D. Pool hole bottom is leveled, graded, with appropriate over dig.

STEP 9) Steel Bar & Plumbing
A. Plumbing: The pool is plumbed with SCH 40 PVC piping. This includes all plumbing for the pool, spa, pool equipment and connecting trenches.
B. Steel Rebar: The steel bar is laid out and tied into a 12" grid for shallows and 6" for the deep ends of the swimming pool.
C. The pool & spa equipment will be bonded and the underground piping pressure tested. The steel rebar is bonded along with pool equipment.

A. The custom pool's shell is formed using shotcrete. Shotcrete is a specific type of concrete that is uses a 7 to 8 bag cement mix.
B. The concrete is pumped through a large hose and along with a high pressure air hose is sprayed (shot) into place.
C. The nozzleman directs the mixture onto the steel rebar structure.
D. With a consistency of the mixture and the proper application the pool's structure is strengthened.
E. The shotcrete will have a rough finish to enhance the adherence of the plaster coating.

STEP 11) Tile
Pool Perimeter Tile
A. The outer perimeter of the pool is tiled. Also, benches and steps are tiled where applicable.
B. Tile is positioned to cover the waterline section of the custom swimming pool.

STEP 12) Concrete Decking
A. Finish grading and compacting for proper ratios.
B. Install bonding steel.
C. Set forms for pool coping and pad/deck edge.
D. Pour concrete: broom, salt, stamped, colored, or however you would like it.
E. Other Decking Options: travertine, brick, stone, tile, etc.

STEP 13) Surface: Plaster
A. The pool shell undergoes thorough cleaning so the interior of the pool can be surfaced with plaster.
B. The pool plaster is a mix of fine sand and cement.
C. The plaster needs to be covered with water once its finished hardening.
D. Other Surface Options: color choices, quartz, pebbletec, tile, etc.

STEP 14) Electrical/Gas Hookup
A. An electrician will need to do all the electrical hook ups.
B. Electrical supply needs to be run to the equipment pad area prior to installation of your pool kit.
C. If you are getting a gas heater, a gas plumber will run the gas lines and bond the joints.
D. You might need to upsize your gas meter for your property.
STEP 15) Fill Pool w/ Water
A. After the plaster has hardened enough you need to begin filling your pool right away.
B. When filling the pool with water, the water needs to have a continuos flow until completely full. DO NOT fill some now and then some later. The pool plaster needs to be introduced to the water with a continous rising flow of water.
C. Chemicals can be added once the pool is full of water. Pool equipment can be started and ran.
D. As a general rule: Do not heat your pool for a minimum of 2 weeks after plaster.

STEP 16) Swim Away!
A. The first few days after the pool plaster is on the pool needs thorough brushing and cleaning.
B. After cleaning and once the pool plaster has been covered with water for a few days your pool is now ready to use. Plaster actually cures over a long period of time, at 30 days it still has not fully cured being at roughly 95% cured.
C. Swim, Swim, Swim!!!
